Skip To Content

707 Sovereign Common SW

Calgary, AB T3C 3Y3
  • $599,900
  • STATUS: Active
  • ID#: A2232784
UPDATED: 63 min ago
$599,900
  • 2
    BEDS
  • N/A
    ACRES
  • 2
    BATHS
  • 1
    1/2 BATHS
  • 1,315
    SQFT
  • $456
    $/SQFT
Neighbourhood:
Type:
Townhouse
Built:
2025
Area:

Description

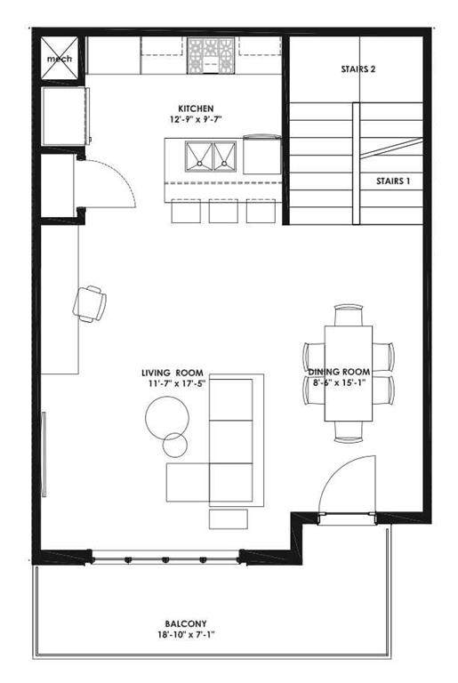
Move in before the end of the year! Current Promotion Offered: 2 years of FREE condo fees + complementary central air conditioning, allowing you to enjoy comfortable maintenance-free living from day one! Welcome to Crown Park, located just 5 minutes from downtown, Calgarys newest inner-city community, blends striking architectural design with modern elegance. Set on 13 acres of exquisite green spaces, the rolling landscape of the site has influenced the design of these park-side properties, offering panoramic views of the downtown skyline. The 'Manhattan' is a thoughtfully designed 3-storey city townhome offering an open-concept floor plan with all the luxuries you could desire in your next home. With over 1,300 square feet of developed space, this home features 2 bedrooms, 2.5 bathrooms, generous living areas, and an oversized private attached garage. The contemporary design centers the living room between the kitchen and dining area, creating the perfect space for entertaining guests. The home also boasts 9-foot ceilings on the main level, providing a bright and inviting atmosphere throughout the day. The gourmet kitchen is upgraded with full-height soft-close cabinetry to the ceiling, stone countertops, and a suite of stainless-steel appliances, including an electric cooktop, chimney hood fan, and a built-in microwave & oven. The homes are designed back-to-back to maximize space, creating an expansive main living area with a wall of windows and access to a private balcony with picturesque views of the surrounding landscape. The upper level features a primary bedroom with its own en suite, complete with a walk-in shower and walk-through wardrobe. A second generously sized bedroom, an additional full bathroom, and convenient upper-level laundry add to the home's appeal. The nearly 19'x7' balcony is the perfect outdoor living space complete with BBQ gas-line and A/C rough-in and the oversized attached garage is the perfect space to keep your vehicle and valuables safe all year long. Crown Park is one of the city's most coveted developments due to its prominent location near the golf course, walkability to transit, and easy access to downtown's countless amenities. This property is perfect for those who enjoy proximity to walking trails along the Bow River, dog-friendly parks, and local hot spots for dining and entertainment. The home comes complete with an extended 3-year workmanship warranty, moving concierge, and complimentary legal fees, offering peace of mind and an easy transition into your new home. Please note: Photos are from a previous property and may not exactly represent the property for sale.

Monthly Payment Calculator

Data is supplied by Pillar 9™ MLS® System. Pillar 9™ is the owner of the copyright in its MLS® System. Data is deemed reliable but is not guaranteed accurate by Pillar 9™. The trademarks MLS®, Multiple Listing Service® and the associated logos are owned by The Canadian Real Estate Association (CREA) and identify the quality of services provided by real estate professionals who are members of CREA. Used under license. Data last updated: 2025-12-12T00:30:11.133.
www.albertarewts.com/homes/165189255
Print Image

707 Sovereign Common SW Calgary, AB T3C 3Y3

  • Price: $599,900
  • Status: Active
  • On Site: Days
  • Updated: 63 min ago
  • ID#: A2232784
2
Beds
2
Baths
1
½ Baths
N/A
Acres
1,315
SQFT
$456
$/SQFT
2025
Built
Neighbourhood:
Shaganappi
Area:
Calgary
Property Description
Move in before the end of the year! Current Promotion Offered: 2 years of FREE condo fees + complementary central air conditioning, allowing you to enjoy comfortable maintenance-free living from day one! Welcome to Crown Park, located just 5 minutes from downtown, Calgarys newest inner-city community, blends striking architectural design with modern elegance. Set on 13 acres of exquisite green spaces, the rolling landscape of the site has influenced the design of these park-side properties, offering panoramic views of the downtown skyline. The 'Manhattan' is a thoughtfully designed 3-storey city townhome offering an open-concept floor plan with all the luxuries you could desire in your next home. With over 1,300 square feet of developed space, this home features 2 bedrooms, 2.5 bathrooms, generous living areas, and an oversized private attached garage. The contemporary design centers the living room between the kitchen and dining area, creating the perfect space for entertaining guests. The home also boasts 9-foot ceilings on the main level, providing a bright and inviting atmosphere throughout the day. The gourmet kitchen is upgraded with full-height soft-close cabinetry to the ceiling, stone countertops, and a suite of stainless-steel appliances, including an electric cooktop, chimney hood fan, and a built-in microwave & oven. The homes are designed back-to-back to maximize space, creating an expansive main living area with a wall of windows and access to a private balcony with picturesque views of the surrounding landscape. The upper level features a primary bedroom with its own en suite, complete with a walk-in shower and walk-through wardrobe. A second generously sized bedroom, an additional full bathroom, and convenient upper-level laundry add to the home's appeal. The nearly 19'x7' balcony is the perfect outdoor living space complete with BBQ gas-line and A/C rough-in and the oversized attached garage is the perfect space to keep your vehicle and valuables safe all year long. Crown Park is one of the city's most coveted developments due to its prominent location near the golf course, walkability to transit, and easy access to downtown's countless amenities. This property is perfect for those who enjoy proximity to walking trails along the Bow River, dog-friendly parks, and local hot spots for dining and entertainment. The home comes complete with an extended 3-year workmanship warranty, moving concierge, and complimentary legal fees, offering peace of mind and an easy transition into your new home. Please note: Photos are from a previous property and may not exactly represent the property for sale.
Exterior Features

Architectural Style 3 (or more) Storey Construction Materials Wood Frame Entry Level 1 Exterior Features BalconyBBQ gas linePrivate Entrance Fencing None Foundation Details Poured Concrete Garage YN Yes Levels Three Or More Parking Features Single Garage Attached Parking Total 1 Patio And Porch Features Balcony(s) Roof Asphalt Shingle Structure Type Five Plus

Interior Features

Basement None Bedrooms Above Grade 2 Common Walls 2+ Common Walls Cooling Central Air Ensuite YN Yes Fireplaces Total 0 Five Piece Bath 0 Five Piece Ensuite Bath 0 Flooring CarpetTileVinyl Four Piece Bath 1 Four Piece Ensuite Bath 0 Heating Forced Air Interior Features No Animal HomeNo Smoking HomeOpen FloorplanPantryQuartz CountersVinyl Windows Laundry Features In UnitUpper Level Rooms Living Room (Main) Dining Room (Main) Kitchen (Main) 2pc Bathroom (Lower) Bedroom - Primary (Upper) 3pc Ensuite bath (Upper) Bedroom (Upper) 4pc Bathroom (Upper) Laundry (Upper) Rooms Above Grade 5 Six Piece Bath 0 Six Piece Ensuite Bath 0 Three Piece Bath 0 Three Piece Ensuite Bath 1 Two Piece Bath 1 Two Piece Ensuite Bath 0

Property Features

Additional Parcels YN No Association Amenities Visitor Parking Association Fee 269.68 Association Fee Frequency Monthly Association Fee Includes InsuranceMaintenance GroundsProfessional ManagementReserve Fund ContributionsSnow RemovalTrash Association YN Yes Association2 YN No Community Features GolfParkPlaygroundSchools NearbyShopping NearbySidewalksStreet LightsWalking/Bike Paths Condo Type Conventional Condo Direction Faces NE Inclusions N/A Lot Features Back LaneLandscapedPaved New Construction YN Yes One Piece Bath 0 Parking Plan Type Attached Garage Pets Allowed RestrictionsCats OKDogs OKYes Property Sub Type Row/Townhouse Title Land Fee Simple Transaction Type For Sale Zoning DC

Listing provided courtesy of Charles. © 2025 Pillar 9™. All Rights Reserved.
Data is supplied by Pillar 9™ MLS® System. Pillar 9™ is the owner of the copyright in its MLS® System. Data is deemed reliable but is not guaranteed accurate by Pillar 9™. The trademarks MLS®, Multiple Listing Service® and the associated logos are owned by The Canadian Real Estate Association (CREA) and identify the quality of services provided by real estate professionals who are members of CREA. Used under license. Data last updated: 2025-12-12T00:30:11.133.
 
https://bt-photos.global.ssl.fastly.net/calgary/orig_boomver_1_A2232784-2.jpg https://bt-photos.global.ssl.fastly.net/calgary/orig_boomver_1_A2232784-2.jpg https://bt-photos.global.ssl.fastly.net/calgary/orig_boomver_1_A2232784-2.jpg
Logo
Real Estate World: Trusted Services | LPT Realty
250 2 St SW #1000
Calgary AB, T2P 0C1